Adficom is een specialist in het inmeten van woningen en het creëren van gedetailleerde, digitale plattegronden die perfect voldoen aan de eisen van platforms zoals Funda. Met jarenlange ervaring in de vastgoedbranche en een diepgaande bouwkundige kennis, bieden wij een service die zowel betrouwbaar als nauwkeurig is.
Onze metingen worden uitgevoerd met professionele meetapparatuur, zodat we de hoogste kwaliteit kunnen garanderen. We volgen de geldende branchebrede meetinstructies, zodat de plattegronden altijd voldoen aan de standaard eisen voor vastgoedvermeldingen. De metingen worden altijd op locatie uitgevoerd, wat betekent dat we direct de juiste gegevens verzamelen die specifiek zijn voor uw woning.
Wat ons echt onderscheidt, is onze persoonlijke benadering en snelle service. Wij begrijpen hoe belangrijk het is om snel en efficiënt te werk te gaan, vooral als het gaat om het plaatsen van een woning op Funda. Daarom zorgen wij ervoor dat uw plattegrond snel en nauwkeurig wordt geleverd, zodat u zonder vertraging verder kunt met de verkoop of verhuur van uw woning.
Onze plattegronden zijn niet alleen ideaal voor Funda, maar ook voor andere vastgoedwebsites, advertenties en taxaties. Met de zorgvuldige en gedetailleerde metingen die wij bieden, krijgt u een duidelijk, visueel overzicht van uw woning, waardoor potentiële kopers of huurders precies weten wat ze kunnen verwachten.
Bij Adficom kunt u rekenen op:
Kies voor Adficom en zorg ervoor dat uw woning op de juiste manier wordt gepresenteerd met een accurate en professionele Funda plattegrond.
Als u een Funda plattegrond wilt laten opstellen wordt er telefonisch een afspraak ingepland en eventuele vragen beantwoordt.
Op het afgesproken moment komt een van onze inmeetspecialisten bij u langs. Tijdens de inspectie worden alle relevante gegevens verzameld waarmee we de Funda plattegrond kunnen opstellen.
Na de inspectie worden de verzamelde gegevens verwerkt op kantoor. U ontvangt het definitieve Funda plattegrond binnen 5 werkdagen per e-mail.
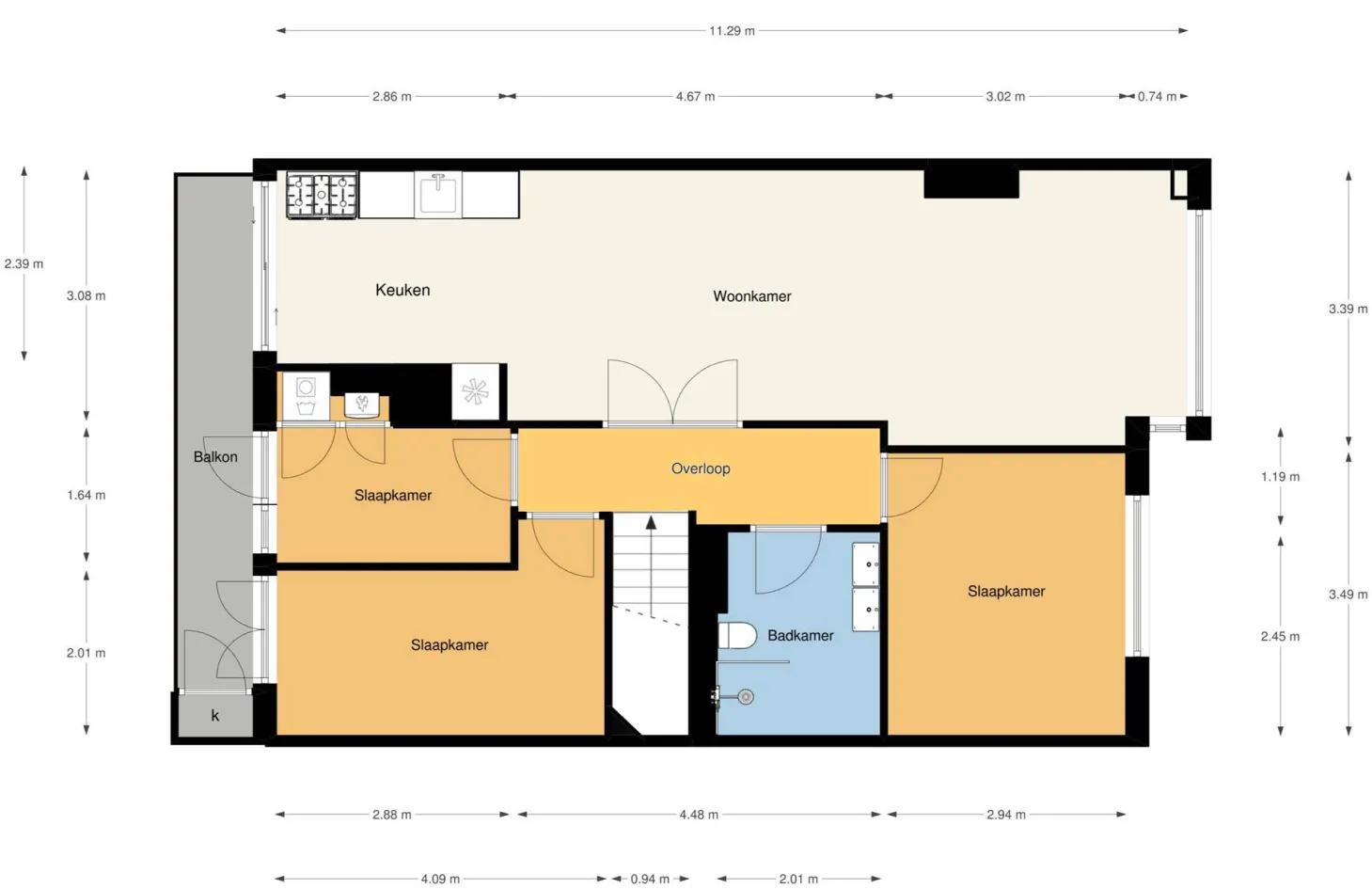
Funda plattegronden geven inzicht in de verschillende ruimtes en de afmetingen daarvan. Met een plattegrond kunnen kopers en huurders een goede inschatting maken van de woning. Tevens krijgt jouw woning op Funda een extra icoontje met ‘plattegrond’, dit zorgt voor een hogere ranking in de Funda zoekresultaten. Ook maakt u met een plattegrond uw objectpresentatie compleet
Een Funda plattegrond is een plattegrond waarbij er gemeten wordt conform de branchebrede meetinstructie van makelaars. Een Funda plattegrond geeft inzicht in de verschillende ruimtes en de afmetingen daarvan. Met deze meetinstructie kan onder andere de gebruiksoppervlakte, overige inpandige ruimtes, gebouw gebonden buitenruimte en externe bergruimte van de woning worden berekend.

Bij Adficom weet u altijd waar u aan toe bent. Wij hanteren vaste lage all-in tarieven, zónder verborgen kosten.
Na de inspectie verwerken wij alle gegevens direct. In de meeste gevallen ontvangt u uw Funda plattegrond al binnen 5 werkdagen.

De plattegronden zijn Conform norm makelaarsbranche.

Wij leveren Funda plattegronden voor woningen in een groot deel van Nederland. Neem gerust contact met ons op om te kijken of uw regio er ook bij zit.

Heeft u meerdere woningen waarvoor u een Funda plattegrond nodig heeft? Dan bieden wij aantrekkelijke portefeuillekortingen. Vraag gerust een maatwerkofferte aan.

Een snelle service is voor ons vanzelfsprekend. Na uw aanvraag nemen wij binnen één werkdag contact met u op.
De gebruiksoppervlakte die op Funda wordt vermeld zijn conform deze meetinstructies. Deze meetinstructie is vastgesteld door NVM, VBO makelaar, VastgoedPRO, Vereniging Nederlandse Gemeenten en de Waarderingskamer. In de meetinstructie staat beschreven wat er wel en niet mag worden meegerekend als oppervlakte van een woning. Om woningen goed met elkaar te kunnen vergelijken is er voor gekozen om de ruimten apart te benoemen en onderscheid te maken op basis van de bruikbaarheid van de ruimten. De ruimtes die apart benoemt worden zijn: